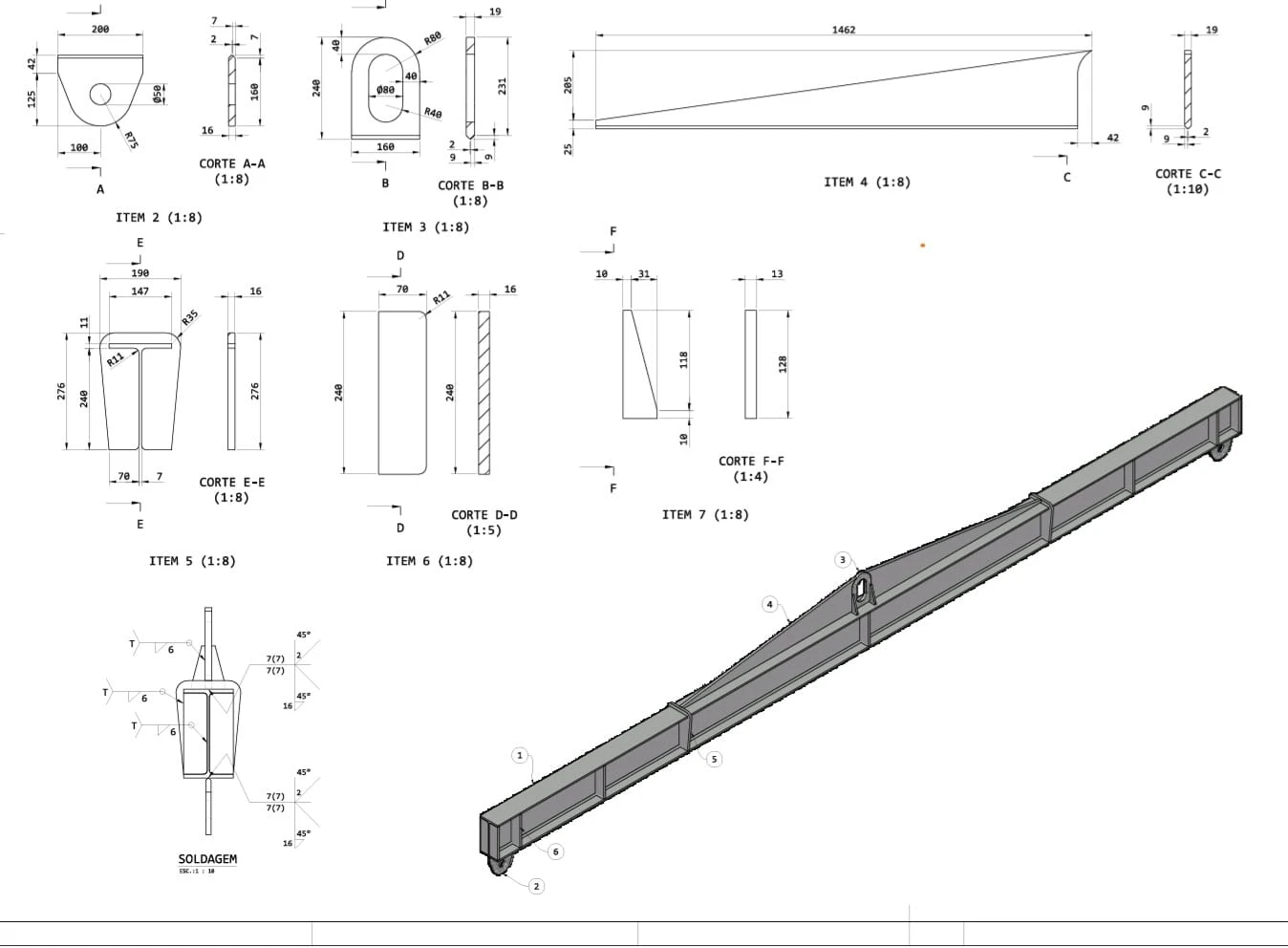
Projetos de Dispositivos Especiais para Içamento de Cargas
Na DSA Engenharia de Projetos, oferecemos Projetos e Memorial Completo de Dispositivos Especiais para Içamento de Cargas para garantir a proteção total em suas operações de movimentação de cargas. Com 15 anos de experiência, nossos especialistas desenvolvem projetos detalhados que atendem às normas mais rigorosas e asseguram a integridade dos equipamentos e dos profissionais envolvidos.
.
.
.
Benefícios e Vantagens:
- Segurança Aumentada: dispositivos projetados para minimizar riscos e garantir a segurança.
- Conformidade Normativa: projetos que atendem às exigências legais e regulamentares.
- Detalhamento Completo: documentação minuciosa que inclui todas as especificações e diretrizes.
.
.
.
Escolher a DSA significa optar por experiência comprovada e soluções que oferecem tranquilidade e confiabilidade em cada projeto.
.